
Le projet vise à financer la transformation d'un bâtiment en boxes de stockage à louer, situé à proximité de l'aéroport de Toulouse. La société emprunteuse, KL-BOX, est spécialisée dans la location de boxes pour les particuliers et les professionnels.
Cette entreprise a été fondée par Philippe ONNO pour gérer l'activité de location des 400 boxs. Fort de plus de 30 ans d'expérience en tant que chef d'entreprise, Philippe ONNO dirigeait auparavant une société spécialisée dans la fabrication de menuiseries en aluminium près de Toulouse, où il supervisait plus de 15 employés. Bien implanté dans la région, il a collaboré avec de nombreux promoteurs et constructeurs sur des projets neufs et de rénovation.
Ce projet est amortissable sur une durée plus longue que la moyenne proposée par la plateforme, ce qui signifie que vous recevrez chaque mois une partie de vos intérêts et de votre capital. Les remboursements seront versés grâce aux revenus générés par la location des boxes.
Pourquoi investir dans ce projet ?

Le porteur de projet sollicite la plateforme pour financer des travaux d'aménagement nécessaires à la création de boxes de stockage, à hauteur de 600 000 €. Ce financement sera sous la forme d'un prêt à 10% amortissable sur une durée de 54 mois, incluant 6 mois de différé en capital.
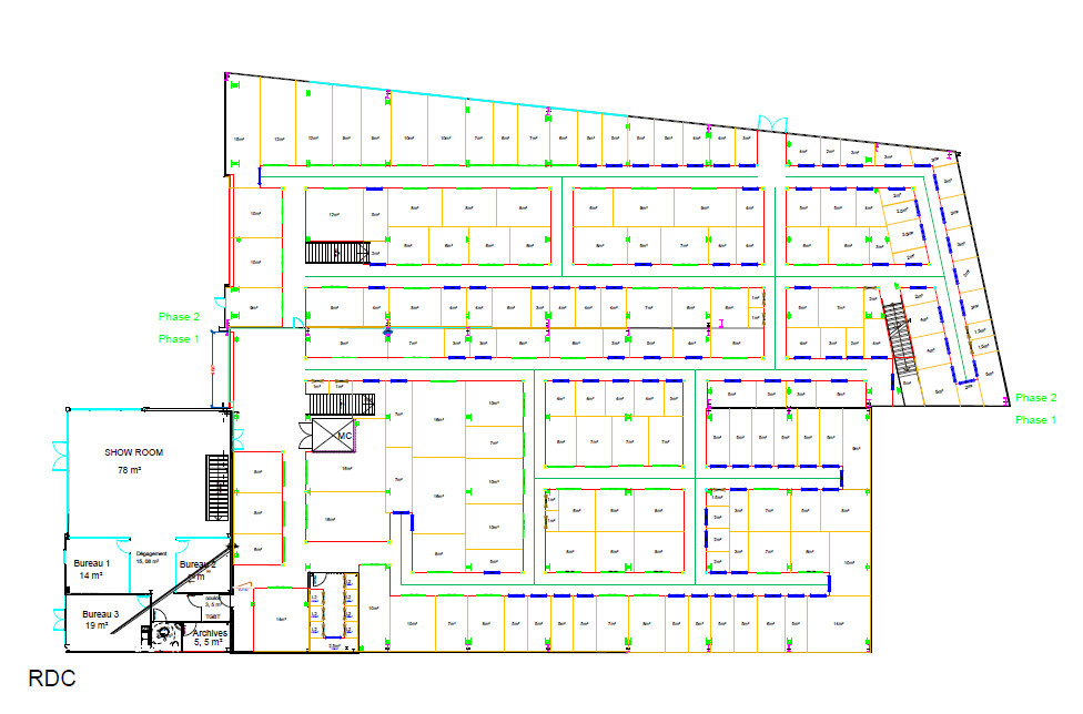
Le projet sera réalisé en deux phases : la première phase concerne l'aménagement de 200 boxes destinés à la location cet été, avec des réservations déjà en cours. La seconde phase prévoit l'aménagement de 200 autres boxes pour atteindre un total de 400 emplacements d'ici janvier 2025. Les 200 premiers boxes auront une surface moyenne de 5m² chacun. De plus, l'ancien parking à l'arrière du bâtiment pourra accueillir 16 conteneurs maritimes pour le stockage des professionnels.
Le projet est sécurisé par plusieurs mesures :
Les problèmes de logement actuels et l'essor du télétravail augmentent chaque jour le besoin d'une pièce supplémentaire pour chaque famille afin de stocker les affaires d'hiver ou d'été, les souvenirs de famille, ou encore les meubles lors d'un déménagement. Le self-stockage est aujourd'hui beaucoup moins développé en France qu'en Angleterre, en Allemagne et en Espagne.
La cible principale de ce projet est la femme de 40 ans, ingénieur dans le domaine aéronautique, sachant que 45 000 salariés travaillent à moins de 5 km de notre site. La particularité de KL-BOX réside dans son emplacement central au milieu de commerces, contrairement à la plupart des autres projets situés en périphérie des zones commerciales.
Les 200 premiers boxes, d'une surface moyenne de 5 m², seront disponibles à la commercialisation en avril 2024. 200 autres boxes seront prêts en janvier 2025. De plus, l'ancien parking à l'arrière du bâtiment pourra accueillir 16 conteneurs maritimes destinés au stockage professionnel.
Des services additionnels seront également proposés, tels que la vente de cartons et de matériel d'emballage, la location de camionnettes, la réception de colis, et la domiciliation d'entreprises.
Le bâtiment de la SCI KL situé 5 bis route de Toulouse à Cornebarrieu a un fort potentiel commercial de par son aspect, sa localisation au centre de Cornebarrieu et son excellente visibilité depuis l’axe principal de la commune fréquenté par plus de 20.000 véhicules par jour.
Plan du RDC

Plan du 1er étage

Les premiers box au RDC

L’étage prêt à être équipé

Les bureaux

Le client a créé une SAS pour l’exploitation des box de stockage. Le terrain et le bâtiment sont la propriété de la SCI KL, qui a contracté un prêt bancaire en 2016 sur une durée de 13 ans pour l'acquisition du bâtiment.
Le prévisionnel financier a été établi en prenant en compte les deux phases des travaux :
D'ici fin décembre 2024, KL Box prévoit un taux de remplissage progressif pour atteindre 80 % de location des 200 premiers box, générant un chiffre d'affaires cumulé de 54 k€ pour la période de mai à décembre. À fin mai 2024, 25 % des box seront déjà loués grâce aux pré-réservations lancées en amont.
Un différé de 6 mois a été mis en place pour permettre au chiffre d'affaires d'augmenter progressivement sans impacter drastiquement la trésorerie de la société.
À la fin de la deuxième phase des travaux, fin 2025, le chiffre d'affaires projeté avec un taux de remplissage de 90 % pour les 200 box devrait atteindre 108 k€. En cumulant les 400 box avec un taux de remplissage de 90 %, le chiffre d'affaires prévisionnel au 31 décembre 2025 pourrait atteindre 287 k€ HT. Avec ces hypothèses, la CAF retraitée fin 2025 sera de 133 k€, permettant de rembourser une partie de l’emprunt. Afin de renforcer la trésorerie, M. Onno apportera 200 k€ de fonds propres.
À noter que le client a surestimé les charges externes pour être le plus prudent possible.
Semestre 2 2024 = 20% (réservations pré-commercialisation)
Année 2025 = 80% de remplissage
| Année | Apport FP | Remboursement dette EP K + I | Remboursement dette bancaire K + I | EBE retraité du loyer | IS | FCF | FCF cumulé |
| 2024 | 200 000 € | 30 000 € | 46 038 € | 31 150 € | 0 € | 155 112 € | N/A |
| 2025 | - | 182 611 € | 92 076 € | 243 106 € | 0 € | - 31 581 € | 123 531 € |
| 2026 | - | 182 611 € | 92 076 € | 326 900 € | 20 800 € | 31 413 € | 154 945 € |
| 2027 | - | 182 611 € | 92 076 € | 326 900 € | 20 800 € | 31 413 € | 186 358 € |
| 2028 | - | 182 611 € | 92 076 € | 326 900 € | 20 800 € | 31 413 € | 217 772 € |
| 2029 | - | 0 € | 24 839 € | 326 900 € | 20 800 € | 281 261 € | 499 033 € |
|
Année
|
CA* | EBE | REX | RN | CAF |
| 2024 | 54 K€ | -23 K€ | -41K€ | -66 K€ | -24 k€ |
| 2025 | 276 K€ | 133 K€ | 81 K€ | 40 K€ | 133 K€ |
| 2026 | 360 K€ | 214 K€ | 162 K€ | 106 K€ | 190 K€ |
*hors bureau et activités connexes
|
Année
|
CA | EBE | REX | RN | CP |
| 2021 | 90 K€ | 72 K€ | 29 K€ | 12 K€ | 343 K€ |
| 2022 | 116 K€ | 100 K€ | 57 K€ | 38 K€ | 381 K€ |
| 2023 | 120 K€ | 85 K€ | -6 K€ | -16 K€ | 364 K€ |
Ventilations ressources |
Fonds propres |
Dette crowdfunding |
Dette bancaire |
Total |
Montant |
425 K€ |
600 K€ |
0 K€ |
1 025 K€ |
Quotité |
41.46 % |
58.54 % |
0.00 % |
100 % |
Les garanties mises en place pour sécuriser l'opération sont les suivantes :
- Mise en fiducie-sûreté des flux issus des loyers des box mis en location (compte bancaire fiduciaire) dont le constituant est la SAS, les flux de location serviront à rembourser la dette avant d’être libérés à la SAS KL Box (Siren 927 487 926) en cas d'excédent.
- Mise en fiducie-sûreté du compte courant d’associé de la SAS KL Box (Siren 927 487 926) vers la SCI KL (Siren 478 059 892),
- Hypothèque de 2nd rang sur le bâtiment valorisé 1,95 M€ nets de dettes, soit plus de 300% du capital emprunté, à hauteur de 120% du capital emprunté, afin de couvrir également les intérêts, frais et accessoires. Les clauses associées à la présente garantie hypothécaire permettent de sécuriser l’utilisation du bien hypothéqué et de facto de pouvoir le vendre en cas de défaut de remboursement du porteur de projet,
- Caution personnelle et solidaire notariée du dirigeant, M. Onno, à hauteur de 120% du capital emprunté, afin de couvrir également les intérêts, frais et accessoires. Le patrimoine net du porteur de projet estimé à plus de 1M€, hors résidence principale. Ce type de caution va permettre d’intégrer financièrement le dirigeant dans le montage de l’opération.
- Engagement de blocage du compte courant d'associé du dirigeant à hauteur de 100 K€ et à due proportion du capital restant dû.
ONNO Philippe
Philippe Onno a dirigé une entreprise spécialisée dans la fabrication de menuiseries en aluminium depuis 20 ans. Bien implanté dans la région, il a accompagné de nombreux promoteurs et constructeurs, tant pour des projets neufs que pour des rénovations.
Projet terminé
Fini le 20-07-2024